振動篩12年生產廠家
過濾,除雜,分級

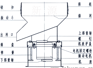
過濾篩又叫過濾機,新鄉市大漢振動機械有限公司的型號為DH-450過濾篩,DH是“dahan”全拼的首字母,也就是說代表了大漢公司的意思,450為過濾篩的外直徑,該機有效篩面尺寸為420mm,由一臺0.18KW立式振動電機作為振動源而產生激振力, 過濾篩廣泛應用于各種漿液的過濾和除雜,在豆漿的過濾中,DH-450過濾篩由于體積小方便移動,容易清理比較深受門店性質的客戶歡迎,不過一般門店沒有380V電路,因此需要將380V電路通過加變電裝置把電壓改為220V,相對機器采購成本來說會加高些,由于過濾篩沒有出料口,豆漿的豆皮和渣料會不斷堆積在篩框內,需要定時間清理,因此需要人工輔助,而旋振篩由于有粗細出料口,因此更適合大產量豆漿的過濾,能形成流水線作業,不需要人工看護,產量也比較大,根據以上差別,客戶可根據自己的情況選擇不同型號的篩機,新鄉市大漢振動機械有限公司是專業的過濾篩,旋振篩以及各種篩分設備的制造廠家,致力于解決各種篩分難題,歡迎來廠參觀考察,來電咨詢,24小時服務熱線15893808811 隨時恭候。
過濾篩結構圖

旋振篩結構圖
